Direkt zum Inhalt wechseln

Wuppertal | Sonnabendstraße 26

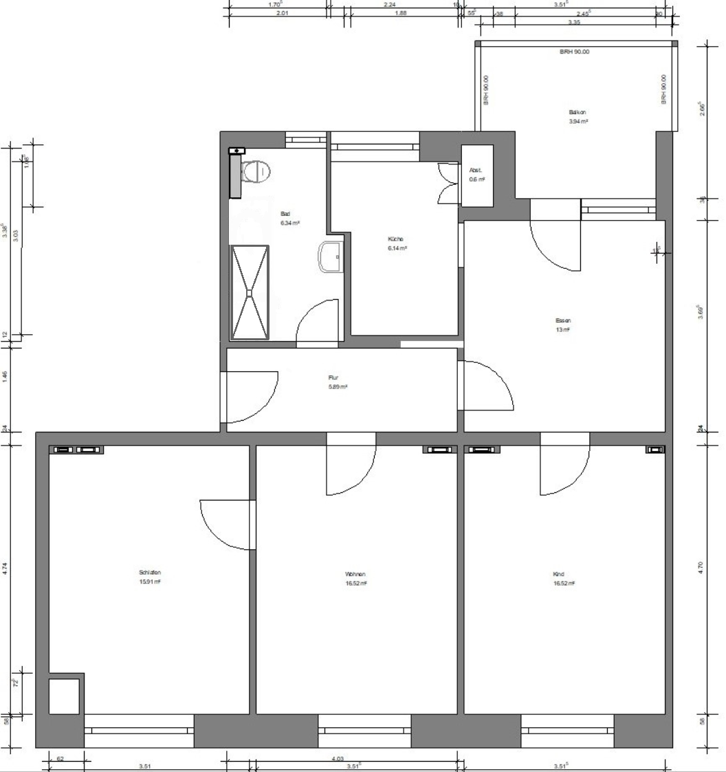
4 Zi. KDBB

Objekt-ID:
1/1018/4/27
Sonnabendstraße 26
42277 Wuppertal
Zimmeranzahl:
4
Wohnfläche:
86,31 m²
Grundmiete:
690.48 €
Betriebskosten:
130 €
Heizkosten:
Heizungsart:
Etagenheizung
Energieausweistyp:
Bedarfsausweis
Energieverbrauch:
Energieeffizienzklasse:
C
Baujahr:
1929
Wohnberechtigungsschein:
Nein
Genossenschaftsanteil:
500,00 € Anteil + 20,00 € Beitritt

Anfrage stellen

Klicken Sie auf den unteren Button, um den Inhalt von Wohnungshelden zu laden.

Inhalt laden